Экранированная дверь RFSD-100
Особенности дверей RFSD-100
Распашная дверь RFSD-100 отличается следующим:
• легкая запатентованная конструкция;
• дверь RFSD-100 проста в управлении;
• конструкция позволяет вмещать длинные элементы поглотителей электромагнитных волн;
• отличный контакт между рамой и створкой двери (металл-к-металлу);
• для дополнительной нагрузки используются ферриты (до 50 кг/м2).
Двери модели RFSD-100, разработанные ETS-Lindgren, соответствуют высоким требованиям.
Специальная запатентованная конструкция дверей RFSD-100 обеспечивает простоту и легкость в их управлении.
Контакт между рамой двери и ее створкой (металл – металл) просто идеальный.
Конструкция двери позволяет вмещать габаритные поглотители.
Цена по запросу, e-mail: info@ems-kamera.ru
Описание двери RFSD-100
Раздвижная дверь RFSD-100 представляет собой экранированную дверь производства ETS-Lindgren.
RFSD-100 создана для защиты от электромагнитных волн.
Комплектация двери RFSD-100
Комплект экранированной двери RFSD-100 включает саму дверь и раму.
Раствор двери Euroshield может быть выполнен в соответствии с ТЗ заказчика.
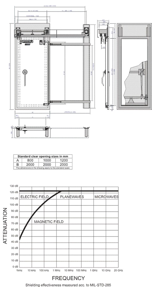
Стандартные размеры дверного полного раствора (модели RFSD-100): 80см х 240см, высота 200-240см.
Створки с обеих сторон раздвижной двери RFSD-100 окрашены белым цветом (RAL9010).
Размер максимальный может составлять 3м х 3м.
Доставка дверей возможна вместе с подвижными подъемниками, помогающими перемещаться устройствам на колесах в помещение.
У производителя ETS-Lindgren возможно заказать также специальные большие раздвижные двери типа SRFSD, которые имеют размеры от 6м х 6м.
Дополнительные опции
Опции для двери RFSD-100:
• специальный выключатель информирует о состоянии (закрыта/открыта) дверной РЧ проницаемости;
• система наклонной фронтальной платформы;
• операционные системы (PNL-1, PNL-3) пневматические;
• кодовый замок;
• замок для магнитных карт (необходима система PNL-3);
• на заказ нестандартные размеры (до 3м х 3м со спецконструкциями).
Характеристики двери RFSD-100
Отличные характеристики RFSD-100 можно увидеть на рисунке.
Данные получены в результате измерений и тестирований в соответствии стандарту MIL-STD-285.
Технические схемы и диаграммы
Экранированные двери ETS-Lindgren
• одноножевая дверь SKE;
• двухножевая дверь DKE;
• дверь ALDS с автозащелкой;
• распашная дверь ASDS;
• пневматическая дверь PSD;
• раздвижные двери: SRFSD-100, SRFSD-F/A-100;
• распашные двери: RFD-60, iRFD-100, RFD-F/A-100, RFSD-100.
